Двухэтажный дом площадью 100м2.
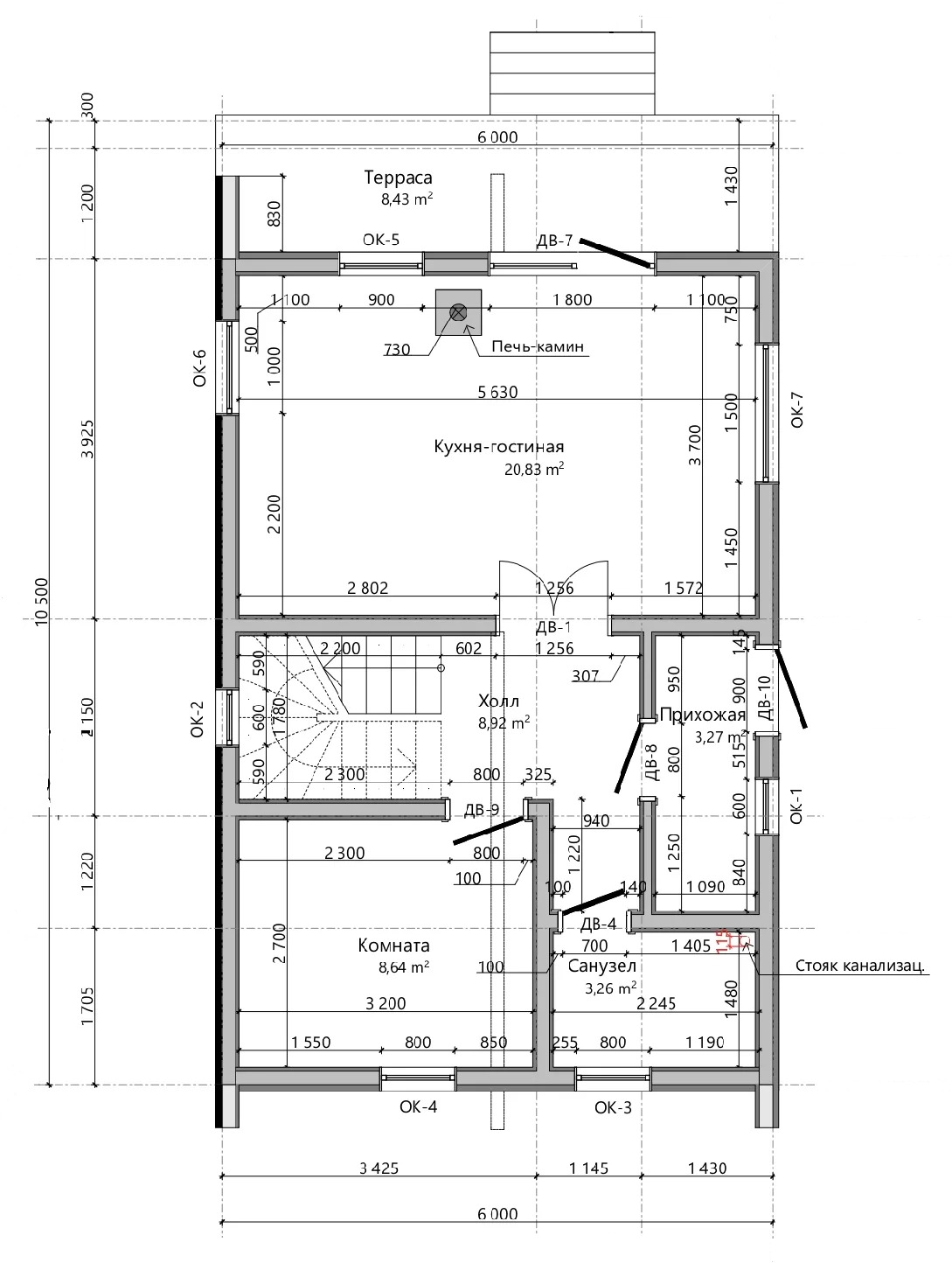
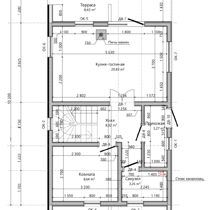
Площадь 1-го этажа: 53,35м2
Первый этаж включает в себя:
1. Терраса: 8,43м2
2. Кухня-гостиная: 20,83м2
3. Холл: 8,92м2
4. Прихожая: 3,27м2
5. Комната: 8,64м2
6. С/у: 3,26м2
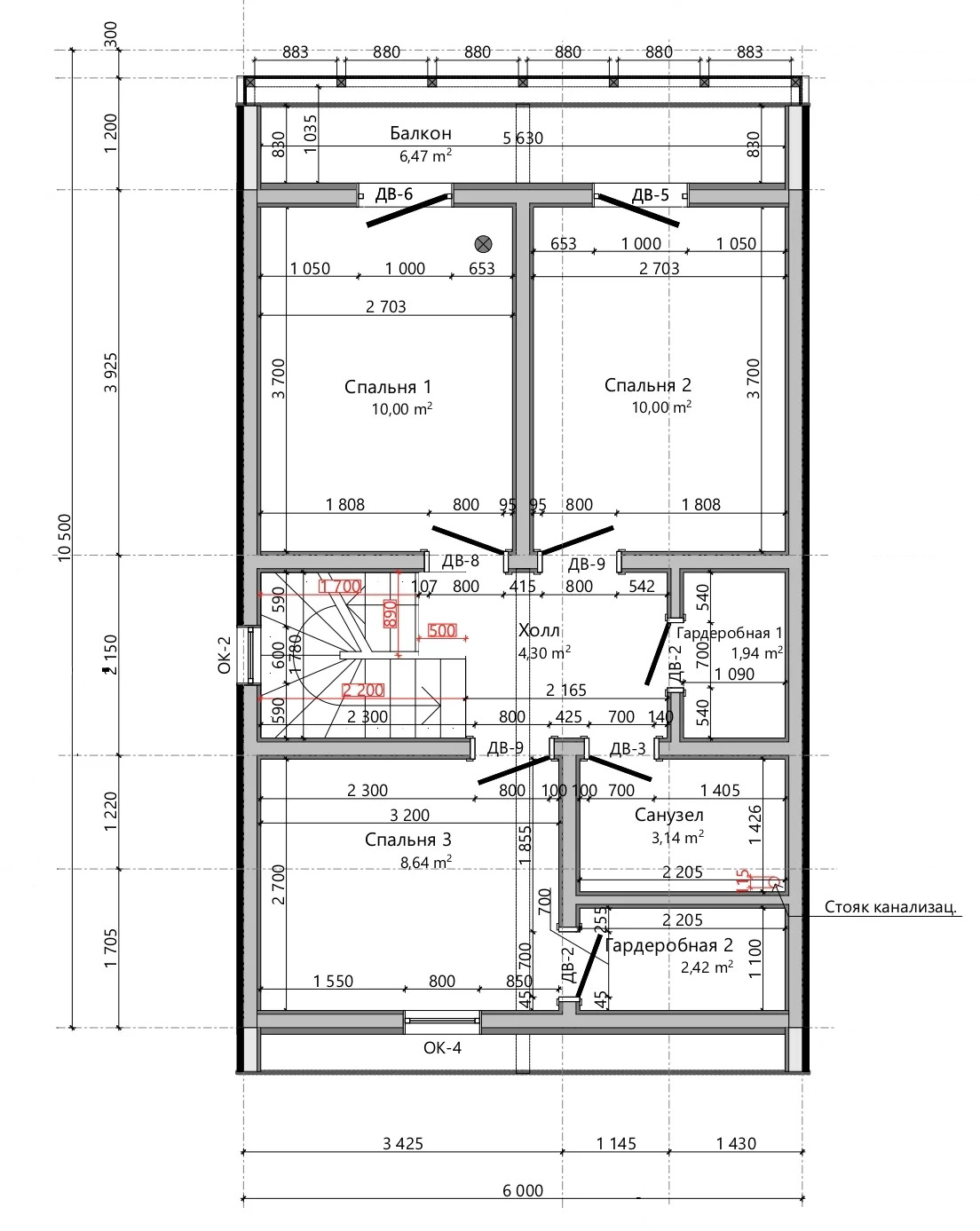
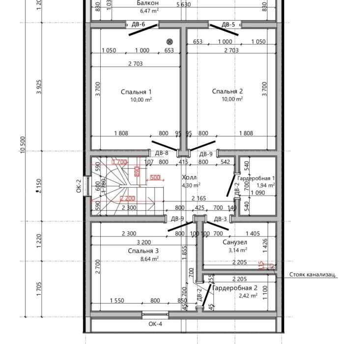
Площадь 2-го этажа: 46,91м2
Второй этаж включает в себя:
1. Балкон: 6,47м2
2. Спальня 1: 10,00м
3. Спальня 2: 10,00м2
4. Спальня 3: 8,64м2
5. С/у: 3,14м2
6. Гардеробная 1: 1,94м2
7. Гардеробная2: 2,42м2
8. Холл: 4,3м2




















