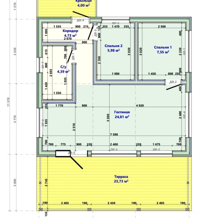
Площади помещений:
1. Гостиная-кухня 24,81м2
2. С/у 4,39м2
3. Спальня 7,55м2
4. Спальня 5,98м2
5. Крыльцо 4м2
6. Коридор 4,73м2
7. Терраса 23,73м2
Каркасный дом СВЕТЛЫЙ
4 .862 .000 ₽
Одноэтажный дом 7,7х8=57,6м2
Терраса 3х8=24м2
Крыльцо 1,37х2,875=4м2
Общая площадь застройки: 75,2м2


















