Двухэтажный дом площадью 157м2.
Площадь 1го этажа: 85,59м2
Высота 1го этажа: 3м
Первый этаж включает в себя:
1. Прихожая: 3,28м2
2. Холл-коридор:3,76м2
3. Котельная 5,36м2
4. Гостиная 18,91 м2
5. Кухня-столовая 9,47м2
6. Спальня 1: 12,53м2
7. С/у: 3,86м2
8. Крыльцо: 12,06м2
9. Терраса: 16,66м2
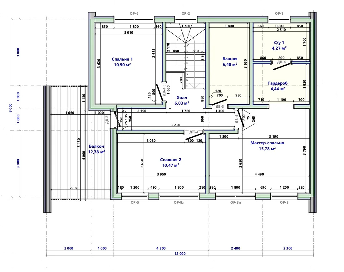
Площадь 2го этажа: 71,14м2
Высота 2го этажа: 4,842м
Минимальная высота 2го этажа: 2,249м
Второй этаж включает в себя:
1. Мастер спальня: 15,78м2
2. Спальня 1: 10,9м2
3. Спальня 2: 10,47м2
4. Балкон: 12,78м2
5. Ванная: 6,48м2
6. Холл: 6,03м2
7. Гардероб: 4,44м2
8. С/у: 4,27м2






















