Двухэтажный дом площадью 81,77м2. Основанием
является свайный фундамент с ростверком из пакета досок 145х45.
Стены здания и кровля собираются по каркасной технологии на
строительной площадке. Для сборки стен используется сухая стоганая
доска сечением 195х45, 145х45, 95х45. Отделка наружних стен производится
вертикально расположенным планкеном и Кликфальц PRO
GrandLine по технологии вентилируемого фасада. Для кровли
применяется Кликфальц PRO GrandLine
Каркасный дом с сауной ПИРАМИДА
6 .306 .000 ₽
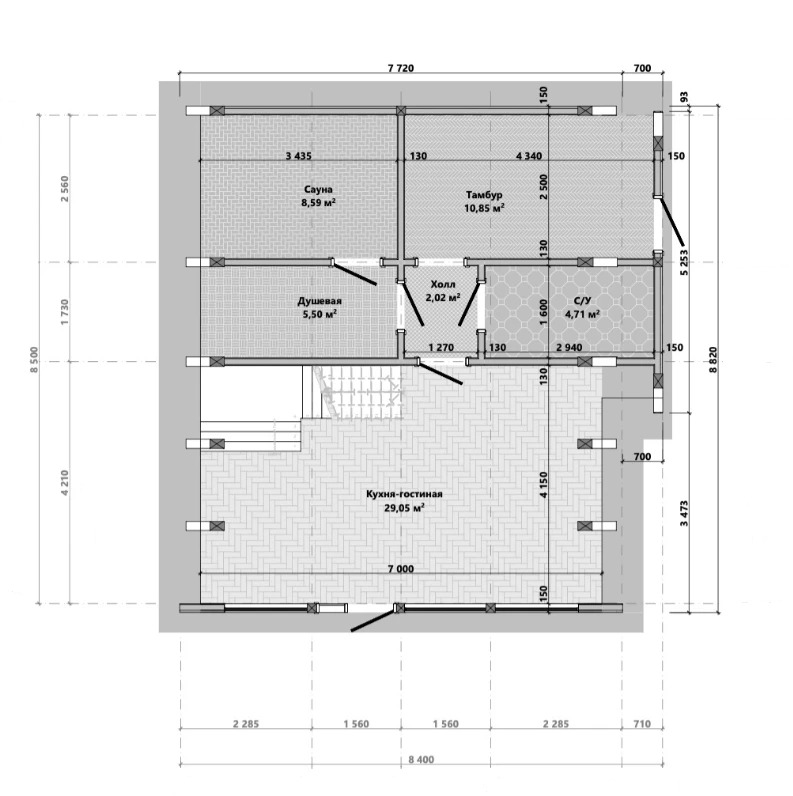
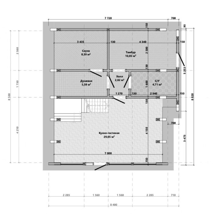
Общая площадь помещений: 81,75м2
Площадь 1-го этажа: 60,72м2
Тамбур: 10,85м2
Гостиная-кухня: 29,05м2
Сауна: 8,59м2
С/у: 4,71м2
Душевая: 5,5м2
Холл: 2,02м2
Площадь 2-го этажа: 21,05м2






















