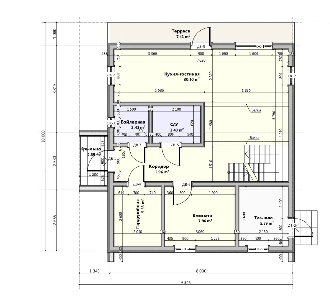
Двухэтажный дом площадью 135,9м2.
Площадь 1-го этажа: 71,07м2
Первый этаж включает в себя:
1. Крыльцо: 2,69м2
2. Терраса: 7,41м2
3. Коридор: 5,96м2
4. Гардеробная: 5,33м2
5. Тех. помещение: 5,59м2
6. С/у: 3,40м2
7. Бойлерная: 2,43м2
8. Кухня-гостиная: 30,30м2
9. Комната: 7,96м2
Площадь 2-го этажа: 64,84м2
Второй этаж включает в себя:
1. Коридор: 7,39м2
2. Балкон: 7,07м2
3. Гардероб: 5,52м2
4. С/у: 5,07м2
5. Кабинет: 3,32м2
6. Спальня 1: 11,86м2
7. Спальня 2: 11,86м2
8. Спальня 3: 12,75м2
























