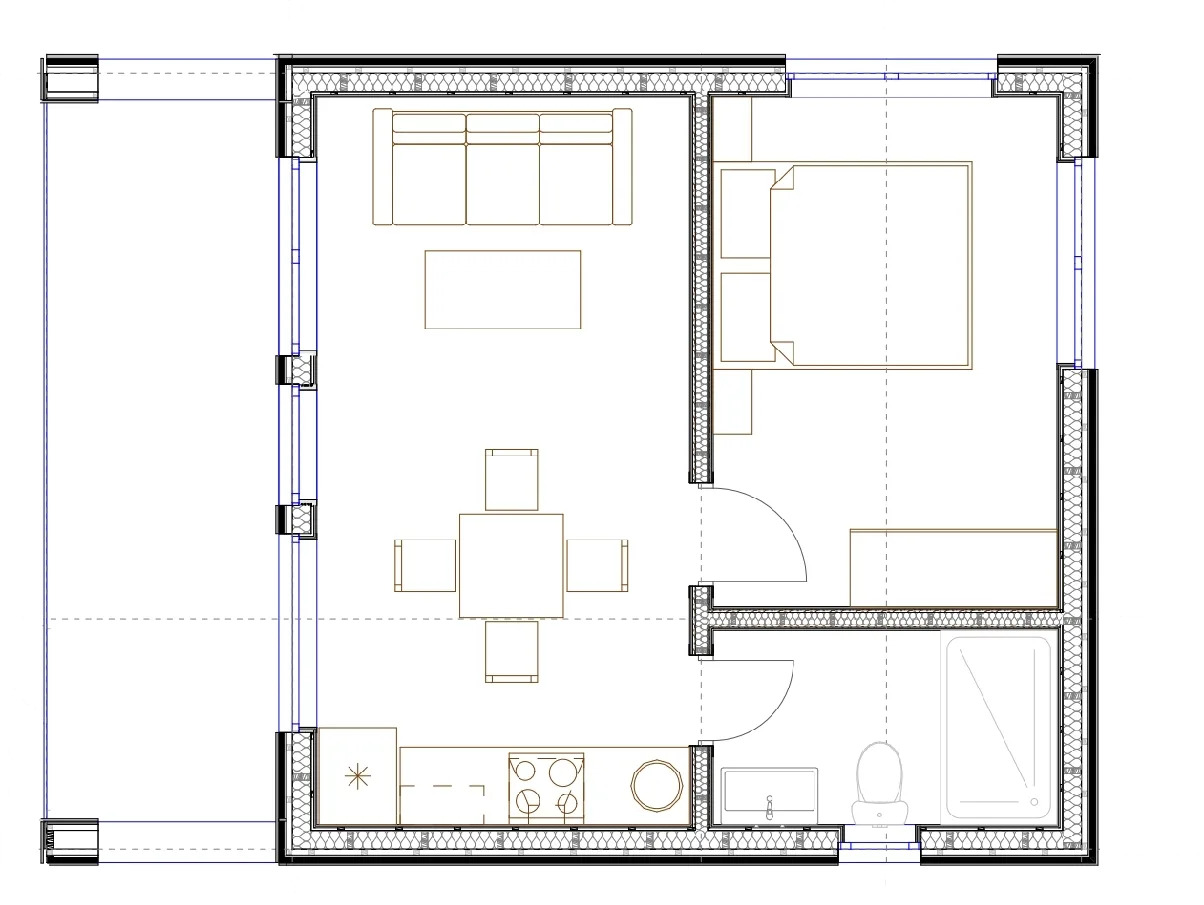
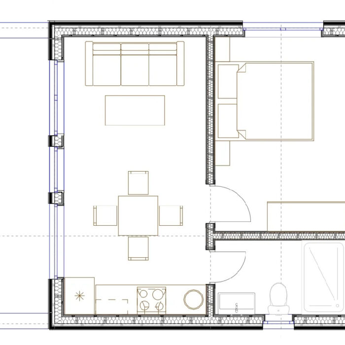
Одноэтажный дом площадью 40,77м2. Основанием
является свайный фундамент с ростверком из пакета досок 145х45.
Стены здания и кровля собираются по каркасной технологии на
строительной площадке. Для сборки стен используется сухая стоганая
доска сечением 195х45, 145х45, 95х45. Отделка наружних стен производится
вертикально расположенным планкеном и Кликфальц PRO
GrandLine по технологии вентилируемого фасада. Для кровли
применяется Кликфальц PRO GrandLine
Каркасный дом НОВА
3 .264 .000 ₽
Одноэтажный дом
Габаритные размеры дома: 6х8м
Габаритные размеры террасы: 6х1,9м
Высота 1-го этажа (расстояние от пола до начала свода потолка): 2,3 м
Высота 1-го этажа (расстояние от пола до конька): 4,35м
Площадь застройки: 50,46м2
Площадь теплового контура (по наружним размерам): 36,6м2
Площадь жилых помещений: 30,75м2
Общая площадь помещений (включая терррасу и крыльцо): 40,77м2
Площадь террасы здания: 10,02м2
Площадь кровли здания: 54,78м2

























