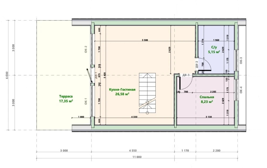
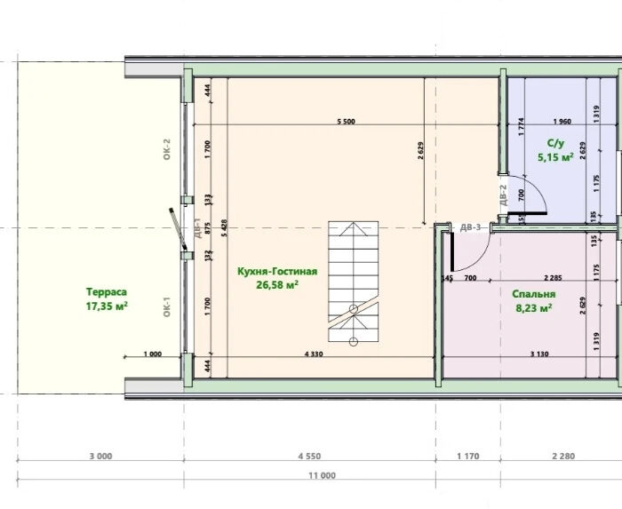
Площади помещений:
1 этаж:
— Спальня – 8,23м2
— Кухня-гостиная – 26,58м2
— Терраса – 17,35м2
— СУ – 5,15м2
Итого 57,31м2
2 этаж:
— Спальня 8,9м2
— Холл – 2,83м2
Итого 11,73м2
Каркасный дом ТЕНЬ
4 .159 .000 ₽
Размер всей застройки 6х11 м
Площадь 1-го этажа 40м2
Площадь 2-го этажа 11,73м2
Терраса 17,35м2
Высота потолков 1-го этажа 2,24м
Высота в коньке 2-го этажа 2м
Угол наклона кровли 60 градусов.



















