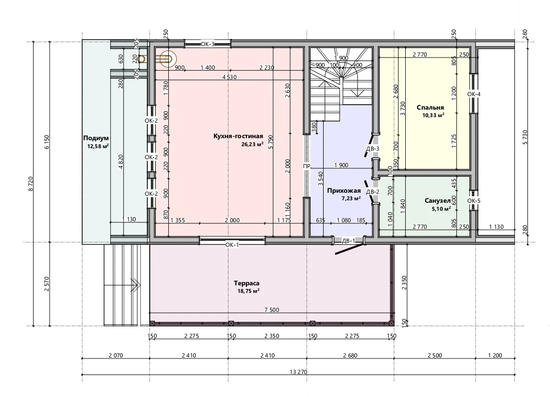
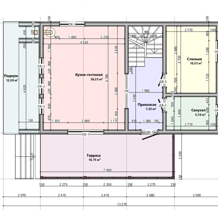
Двухэтажный дом площадью 153м2
Площадь 1-го этажа: 80,22м2
Первый этаж включает в себя:
1. Прихожая: 7,23м2
2. Кухня-гостиная: 26,23м2
3. Спальня: 10,33м2
4. С/у: 5,10м2
5. Терраса: 18,75м2
6. Подиум: 12,58м2
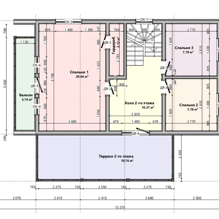
Площадь 2-го этажа: 73,31м2
Второй этаж включает в себя:
1. Холл: 10,27м2
2. Спальня 1: 20,84м2
3. Спальня 2: 7,78м2
4. Спальня 3: 7,78м2
5. Гардероб: 2,12м2
6. Терраса: 18,76м2
7. Балкон: 5,76м2




















