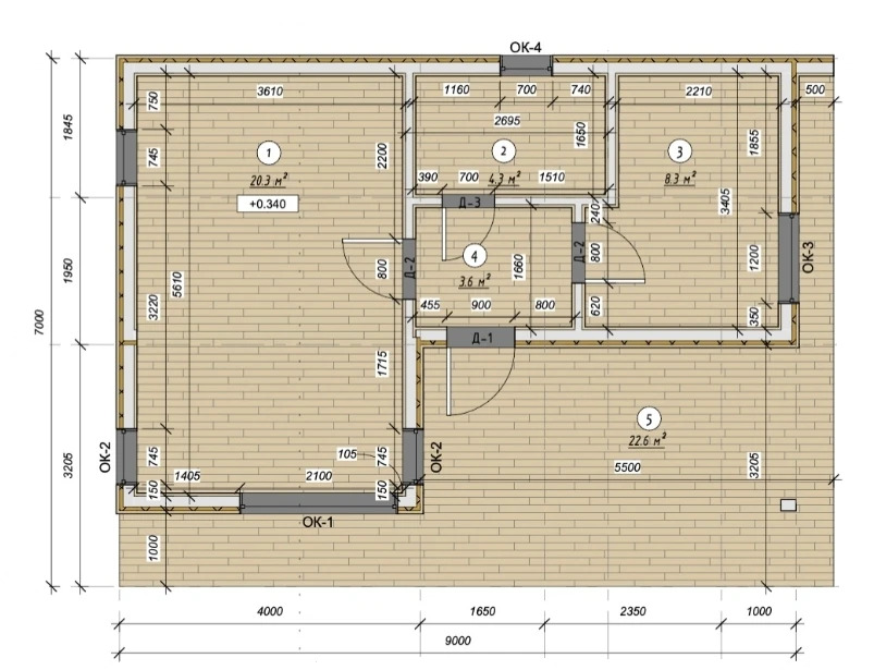
Одноэтажный дом 7х9,5=66,5м2.
1. Терраса: 22,6м2
2. Кухня-гостиная: 20,3м2
3. СУ: 4,3м2
4. Спальня: 8,3м2
5. Тамбур: 3,6м2
Каркасный дом БЕРЕГ
3 .640 .000 ₽
Этажность здания: 1 этаж
Высота потолков: 2,7м
Площадь застройки: 63м2
Общая площадь помещений: 59,1м2
Площадь жилых помещений: 37,1м2


















