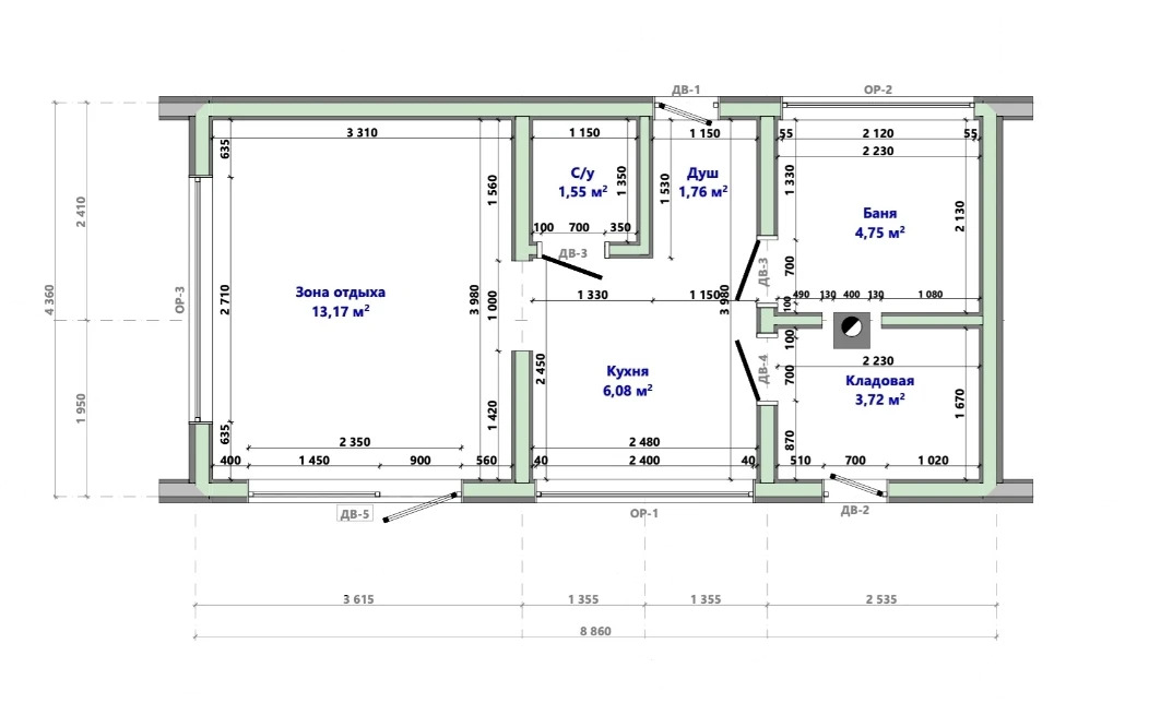
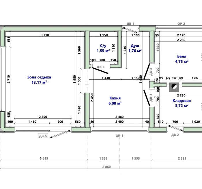
Одноэтажный дом в стиле барнхаус с баней. Размер всей застройки 4,4х8,9=39м2 + антресоль 2,71х3,98=10м2. Основанием
является свайный фундамент с ростверком из пакета досок 145х45.
Стены здания и кровля собираются по каркасной технологии на
строительной площадке. Для сборки стен используется сухая стоганая
доска сечением 195х45, 145х45, 95х45. Отделка наружних стен производится
горизонтально расположенным планкеном и Кликфальц PRO
GrandLine по технологии вентилируемого фасада. Для кровли
применяется Кликфальц PRO GrandLine
Каркасный дом с баней ВЕРШИНА
2 .870 .000 ₽
Общая площадь: 41,83м2
Зона отдыха: 13,17м2
Кухня: 6,08м2
Душевая: 1,76м2
Парная: 4,75м2
С/у: 1,55м2
Кладовая 3,72м2
Антресоль: 10,79м2




















